案例简介:本案例主人公作为高阶级白领,向往美好而又精致的城市生活,对于房屋的装修也有着更有品味的追求。设计师结合业主的品味、工作以及生活习惯,选择了相对比较儒雅舒适的简中式风进行软装,通过引入各类复古清新的古韵元素强调空间的清新自然之美,让业主能够在结束一天忙碌生活之后,尽情享受高雅舒适的休憩生活。
户型解析:


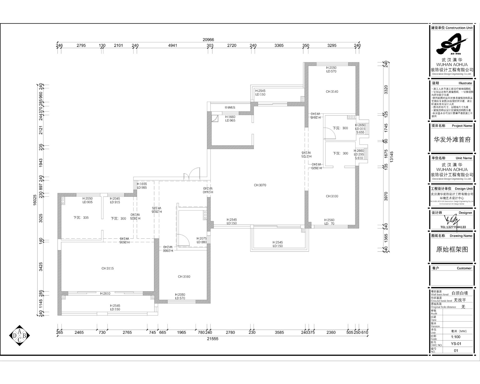
华发外滩首府这套五居室的住宅面积约为241㎡,整体户型结构相对比较少见,简单的一面墙体将两个相对比较独立的大空间连接在一起,而本次的设计难点就在于如何将这两个相对独立的大空间进行合理的规划设计,避免空间出现违法感与割裂感。设计师则直接将两个独立的大空间进行简单的动静分隔,将活动区域、会客区域与休憩空间借助户型的天然隔断进行分隔,有效提升室内私密性与格调感。
客厅:


客厅沙发背景墙采用靓丽的白色,提升空间亮度的同时奠定轻盈舒适氛围感。
卧室:

卧室区域以清新的核桃木色作为主基调色,加以大理石材质背景墙,让空间更显静谧高级格调。
卫生间:

卫生间区域被灰色暗纹瓷砖所包围,搭配以玻璃透明隔断们,给人精致优雅格调感。
知精准报价 避装修深坑
选择您喜欢的风格
现代轻奢
现代美式
北欧
新中式
欧式
其他
知精准报价 避装修深坑
选择房屋面积区间
您的户型
两居室
三居室
四居室
五居室
六居室
知精准报价 避装修深坑
稍等片刻,您的报价正在生中......
知精准报价 避装修深坑
每日仅限前10名用户